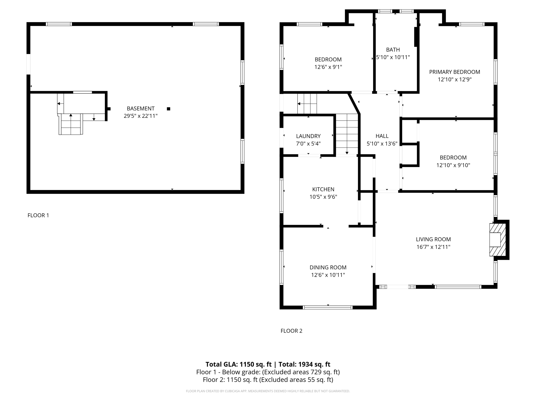
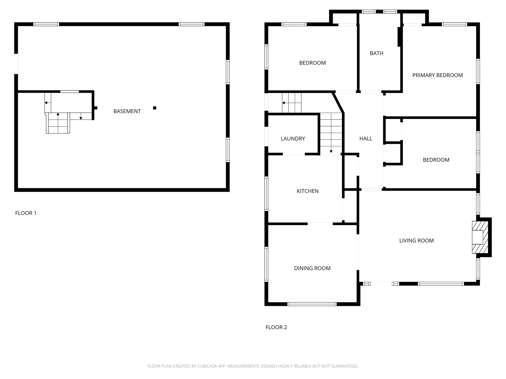
3444 NE Schuyler St,, Portland, OR 97212
Toggle Navigation
Images
Floor Plans
3D Tour
Map
3444 NE Schuyler St
Portland, OR 97212
Scroll to Content
Images
Slideshow
Photo Grid
Hide
Previous
Next
Show more
Floor Plans
Slideshow
Photo Grid
Hide
Previous
Next
3D Tour
Content Coming Soon