9945 N Lombard St,, Portland, OR 97203
Toggle Navigation
Images
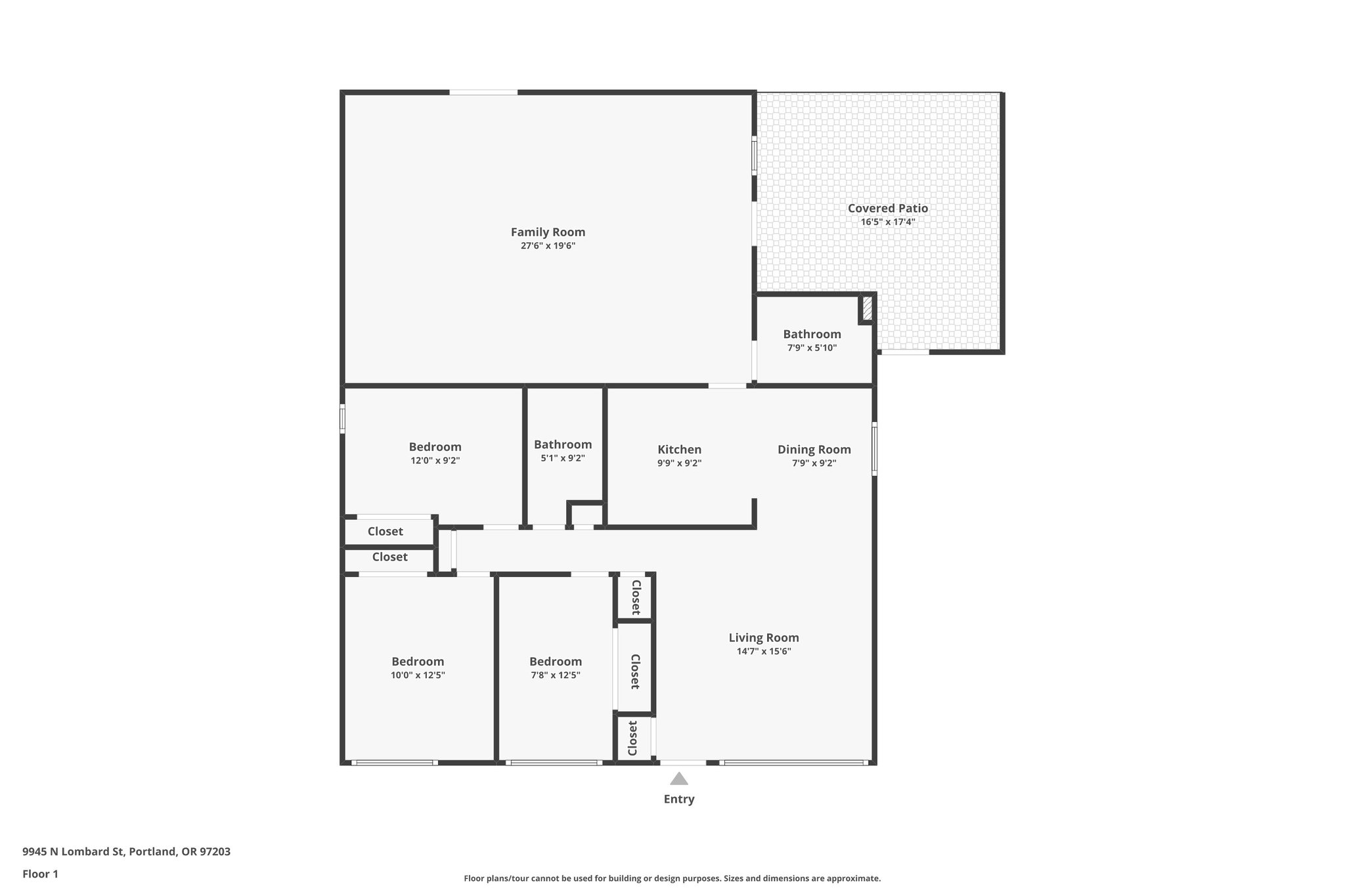
Floor Plans
3D Tour
Map
9945 N Lombard St
Portland, OR 97203
Scroll to Content
Images
Images
Community
Slideshow
Photo Grid
Hide
Previous
Next
Show more
Floor Plans
Slideshow
Photo Grid
Hide
Previous
Next
3D Tour